「補正  寸法線再計算」 to CLassic-CAD 2008/01/25

このコマンドは,ClassicCADで作図された寸法線を再計算して更新します。図形に回転などを与え、それをまた戻したすると、線に誤差を生じる場合があります。これは回転のときにはπ(パイ)を使って計算するので、全てのCADで誤差が生まれます。10を3で割って3を掛けると9.99999・・・・となって10には戻らない事と同じです、πも無限小数ですのでどんなに精度が良いCADでも同様の誤差が生じます。ですから、他のCADからデータを読み込んだ場合や他のCADデータに変換するときは、必ずこれをチェックしなければなりません。


使用方法について
コマンドをヒットすると、サブメニュウが出ます。左ボタンで直ぐに実行されます。
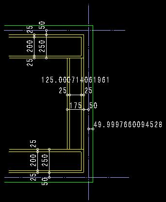
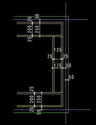
STEP1 寸法線の再計算をする前STEP2 寸法線の再計算をした後(誤差がでている)
STEP3 基本コマンド 精度の変更を開いて実行するSTEP4 ステップ3を実行して、再度実行すると完成します。
このコマンドを実行して下さい。





データの丸め値の前を×から丸にする。
その値は精度の10倍が推奨。

このメニューを実行すると0.01oの精度となります。

注意 
単に寸法文字を変えているのではなく、線の精度も変更して、端数がない状態にしてくれます。


サブメニュー
 メニュで設定するものは有りません。


Ver 2008/01/26 (クリックでファイルに保存を選んで下さい、hosei.zipを解凍すると、hosei.dllファイルが現れます、5つのコマンドが入っています。)
hosei.dll ファイルの内容
hosei_naname
hosei_dimtext
hosei_dist
hosei_dist_all
hosei_moji_deg


履歴
変更した内容
2008/01/25初版発表